一、概述
JLPM(M)防爆型气箱式脉冲袋收尘器是从美国富乐公司引进的具有二十一世纪先进水平的高效率袋收尘器,它综合分室反吹和喷吹脉冲清灰各类袋收尘器的优点,克服了分室反吹清灰强度不够,喷吹脉冲清灰和过滤同时进行的特点,因而扩大了袋收尘器的应用范围,由于这种类型的收尘器的结构有其特点,所以提高了收尘效率,延长了滤袋的使用寿命。
我国是一个以燃煤为主要能源的国家,原煤制粉作业在钢铁、电力、建材、化工、机械等工业部门广泛存在,通常用磨机将原煤制成煤粉,同时送入高温气体将煤粉烘干并带出磨机,再以收尘设备使煤粉和气体分离。通常我国煤粉磨机系统的收尘流程较长,普遍采用一级旋风收尘器加袋式收尘器两级除尘,而袋式收尘器只能在含尘浓度50g/Nm3以下运行。导致设备阻力过高,收尘设备缺乏煤粉收尘所必须的安全功能,清灰不良现象普遍存在,自燃、爆炸事故时有发生。
JLPM(M)防爆型气箱式脉冲袋收尘器具有技术先进,结构新颖的特点,它采用防静电针刺毡滤料,每一室都具有防爆装置,各种电控元件也具有防爆性能,收尘器结构也采用特殊设计,由于采用高压离线清灰,收尘效率高,能够长期,高效运行。非常适合于煤粉制备系统及易燃、易爆粉尘的收集。
二、特点
1、本系列收尘器,由不同室数和每室的不同袋数组成多种不同规格。每室的袋数有 32、64、96和128袋四种。全系列共有33种规格,滤袋直径均为130mm, 滤袋长度有2450mm和3060mm两种。
2、本系列收尘器能负压或正压操作,本体结构无任何改变,其收尘效率可达99.9%以上,净化后气体的含尘浓度小于30mg/m3 (标)。本系列收尘器的主要技术性能分别见表1、 表2、表3和表4。
3、本系列收尘器如用于寒冷地区,且当室外采暖计算温度≤-25℃时,要增设加热装置,收尘器的壳体也要作相应的改变。
4、防爆型气箱式脉冲袋收尘器的特点是采用分室轮流清灰,即所谓离线清灰。当某一室进行喷吹清灰时,过滤气流被切断,避免了喷吹清灰产生粉尘二次飞扬。所以防爆型气箱式脉冲袋收尘器能捕集含尘浓度高达1000g/m3(标)的气体。
5、本系列收尘器滤袋的材质采用防静电涤纶针刺毡,允许连续使用温度小于100℃。
三、工作原理
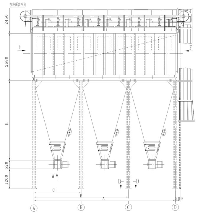
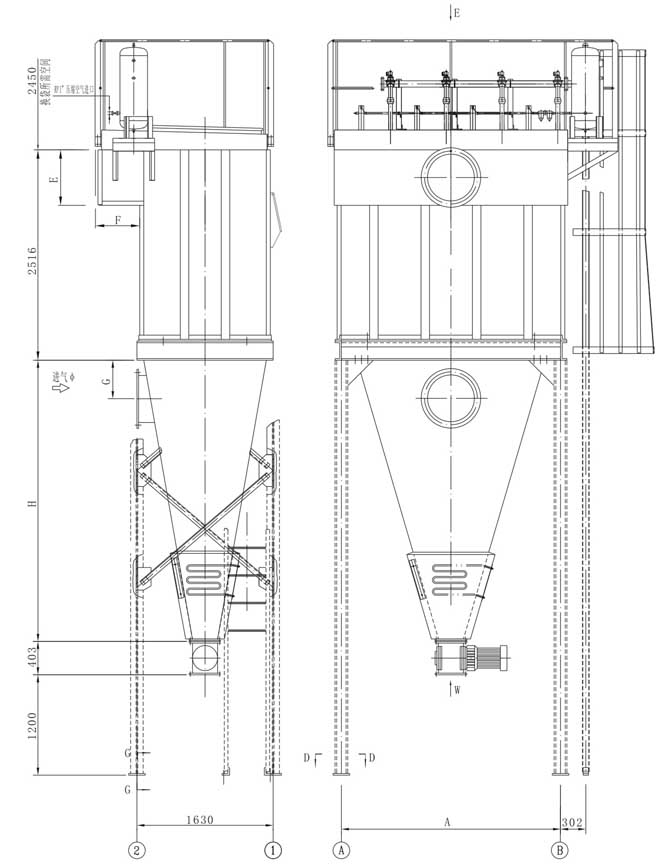
本系列收尘器由壳体、灰斗、排灰装置、防爆门装置、灰斗加热装置、振打装置、支架和脉冲清灰系统等部分组成。当含尘气体从进风口进入收尘器后,首先碰到进出风口中间的斜隔板,气流便转向流入灰斗,起到一定收尘的作用,进入灰斗的气流随后折转向上通过内部装有金属骨架的滤袋,粉尘被捕集在滤袋的外表面,净化后气体进入滤袋室上部的清洁室,汇集到出风管排出。32型收尘器的进风口设在灰斗上,气流进入灰斗后首先碰上进风管端部的挡板,其作用与上述原理相同。壳体用隔板分成若干个独立的收尘室,按照给定的时间间隔对每个收尘室轮流进行清灰。每个收尘室装有一个提升阀,清灰时提升阀关闭,切断通过该收尘室的过滤气流,随即脉冲阀开启,向滤袋内喷入高压空气,以清除滤袋外表面上捕集的粉尘。各收尘室的脉冲喷吹宽度和清灰周期,由专用的清灰程序控制器自动连续进行。
四、选型
一般要根据尘源点处理气体的主要技术参数,如风量、气体温度和含尘浓度等,按下列步骤进行选型。外型见图1、2、3、4、5。
1、根据处理气体量按下式计算收尘器的净过滤面积。
F=Q/60Vn(m2)
式中:Q——处理气体量(m3/H)
Vn——净过滤风速(m/min)
JLPM(M)防爆型气箱式脉冲袋收尘器净过滤风速一般为(0.9~1.0)m/min
2、根据计算得出的净过滤面积,则可直接从表1、2、3、4、5中选取合适的除尘器
例:有一煤磨,处理风量8800m3/h,烟气温度<90℃,选择一收尘器,
F=Q/60Vn=88000/60×0.95=1544(m2)(净过滤风速取(0.95m/min)
算出净过滤面积为1544m2
查表4得知JLPM96-2×9(M)净过滤面积1581m2
所以选择JLPM96-2×9(M)型收尘器比较合适。
五、型号说明
%E5%9E%8B-1.jpg)
六、清灰电气控制装置
清灰电气控制装置要求具有防爆功能,一般采用定时法也可采用定阻法,对多室收尘器集中控制时采用PC集中控制,控制有自动和手动两种方式,当控制器出现故障时,可随时切换为手动控制,为便于调试和设备检修而设有机旁控制。
七、说明
1、收尘器本体包括壳体、灰斗、滤袋装置、进出口风管、排灰装置和脉冲喷吹系统(包括脉冲阀、管道、阀门、气源三连体和储气罐等)。
2、收尘器根据不同规格,可以是整机发运,也可解体发运,其基础设计由选用者负责。
3、本收尘器配备有清灰电气控制装置,一般按定时清灰控制。如用户要求定阻控制订货时应注明,其定阻控制的差压计、差压指示报警仪以及其他仪表等的费用要另行计算。
4、本系列产品由制造厂提供设备使用和安装说明书。
5、本系列产品卸灰装置的供配电由用户自行设计。
6、用户自备压缩氮气源。
7、若需保温,由用户提出,费用另计。
%E5%9E%8B-2.jpg)
%E5%9E%8B-3.jpg)
%E5%9E%8B-4.jpg)
%E5%9E%8B-5.jpg)
%E5%9E%8B-6.jpg)
%E5%9E%8B-7.jpg)
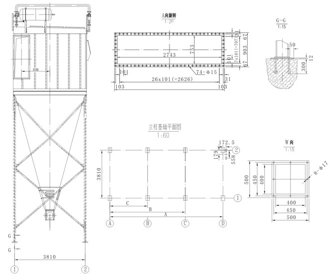
图1.JLPM32(M)防爆型气箱式脉冲袋收尘器外形图
%E5%9E%8B-8.jpg)
%E5%9E%8B-9.jpg)
%E5%9E%8B-27.jpg)
%E5%9E%8B-10.jpg)
%E5%9E%8B-11.jpg)
说明:
1、出风口位置容许在净化气体箱的端部,侧部或底部开孔,孔径与进风管直径相同。
2、进风口的位置,可在图中相对称的位置,现场安装时,将灰斗旋转180度即可。
3、爬梯可放在收尘器的另一端,即图中对称位置。
4、立柱的高度,根据布置情况,可以缩短,但订货时应注明立柱高度。
5、保温层厚度由选用者根据地区不同确定,施工图参见保温层图。
6、为降低设备灰斗高度,JLPM32-5(M)和JLPM32-6(M)采用双灰斗布置,表中H为
双灰斗高度。
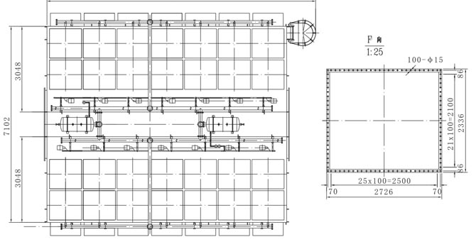
图1.JLPM64(M)防爆型气箱式脉冲袋收尘器外形图
%E5%9E%8B-12.jpg)
%E5%9E%8B-13.jpg)
%E5%9E%8B-14.jpg)
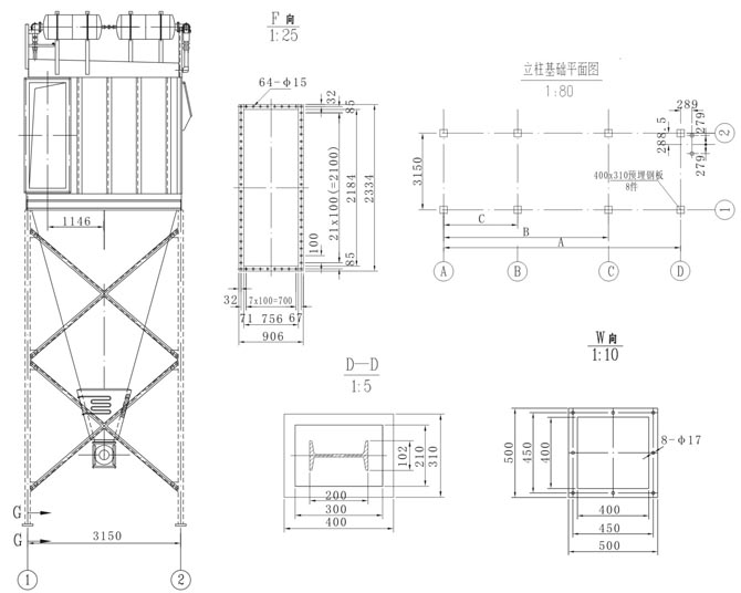
图1.JLPM96(M)防爆型气箱式脉冲袋收尘器外形图
%E5%9E%8B-15.jpg)
%E5%9E%8B-16.jpg)
%E5%9E%8B-17.jpg)
%E5%9E%8B-18.jpg)
图1.JLPM96(M)防爆型气箱式脉冲袋收尘器外形图(双列)
%E5%9E%8B-19.jpg)
%E5%9E%8B-20.jpg)
图1.JLPM128(M)防爆型气箱式脉冲袋收尘器外形图
%E5%9E%8B-22.jpg)
%E5%9E%8B-23.jpg)
%E5%9E%8B-24.jpg)
%E5%9E%8B-25.jpg)




通过认证 
