□ 单台最大处理量126L/min
□ 折流式V形堰板出流,保证出水中砂含量最小
□ 无轴螺旋排砂,避免堵塞和过载现象发生
□ U型衬板采用优质工程塑料成型,耐磨性好
□ 低速运行,能耗低,磨损小
□ 螺旋体材质可选:高强度合金钢,不锈钢SS304或SS316L
□ 机壳材质可选:不锈钢SS304或SS316L
□ 可选:预分离用旋流分离器


|
公司基本资料信息
|
|||||||||||||||||||||||||||
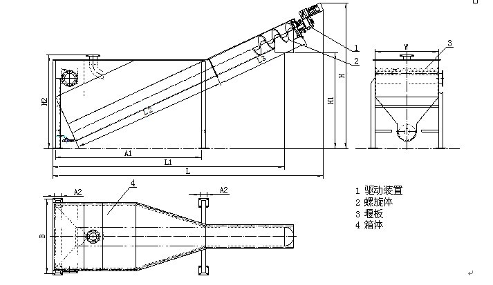
□ 单台最大处理量126L/min
□ 折流式V形堰板出流,保证出水中砂含量最小
□ 无轴螺旋排砂,避免堵塞和过载现象发生
□ U型衬板采用优质工程塑料成型,耐磨性好
□ 低速运行,能耗低,磨损小
□ 螺旋体材质可选:高强度合金钢,不锈钢SS304或SS316L
□ 机壳材质可选:不锈钢SS304或SS316L
□ 可选:预分离用旋流分离器

