| 加工定制 | 是 | 类型 | 外转子风机 | 材质 | 镀锌板 |
| 风机压力 | 中压风机 | 气流方向 | 离心式 | 性能 | 低噪音风机 |
| 用途 | 空调风机 | 电流 | 12.4(A) | 温控范围 | <80 |
| 重量 | 160(kg) | 品牌 | 万勤 | 型号 | 5.6s-5.5kw |
| 输入功率 | 5.5(w) | 风量 | 16000(m3/s) | 适用范围 | 喷烤漆房排风机 |
YDW(YBDW)系列烤漆房专用风机
一、风机特点
YDW(YBDW)系列低噪声离心通风机是一种高效率,变转速的新型节能离心通风机,它由先进的多翼型叶轮,对数螺旋形机壳,可调速的内装直联外转子低噪声三相异步电动机 (YDW系列风机采用YDFW系列外转子低噪声三相异步电动机,YBDW系列防爆风机采用隔爆型外转子低噪音三相异步电动机,(YDFW系列电机的派生产品,它采用相关的国际标准和国家标准,符合GB3836.1-2010和GB3836.2-2010的要求,防护等级IP44级,冷却方式IC0141.通过国家权威部门检测,获得产品生产许可证,适用于适用于工厂或使用场地其他爆炸性混合气体混合物为(除煤矿外的其它爆炸性气体环境)IIB级,温度组别T1—T4组,F级绝缘使用) ,圆弧流线型进风口等部件组成。风机制成双面进风,结构新颖,体积小,风量大,振动小。电动机能借助三相调压器进行降压。实现无极调速,以适应风量变化频繁的场所 。风机可制成“左旋”和“右旋”两种型式,以电动机的出线端看,叶轮顺时针方向旋转为右旋风机。反之,则称为左旋风机。风机出口位置可制0°、90°、180°、270°等多种角度,订货时请注明。
二、风机用途:.该系列风机是空调、净化、冷冻、汽车烤漆房、家具钣金喷烤房、涂装作业中理想的配套产品。
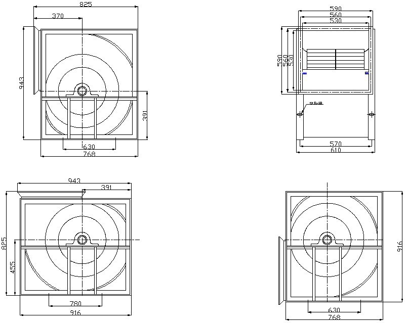
YDW系列5.6S风机外形尺寸

技术参数
|
机号 |
流量m3/h |
全压 Pa |
功率 KW |
噪音(dB) |
机号 |
流量m3/h |
全压 Pa |
功率 KW |
噪音(dB) |
|
|
4.5AS |
8000 |
740-670 |
2.2 |
70 |
4.5L |
13000 |
815-802 |
4 |
76 |
|
|
4.5AL |
10500 |
760-690 |
3 |
72 |
5.6S |
15000 |
825-810 |
5.5 |
80 |
|
|
4.5AL1 |
12500 |
814-800 |
4 |
75 |
5.6M |
20000 |
820-780 |
7.5 |
84.5 |
|
|
5.0A |
15000 |
827-776 |
5.5 |
79 |
5.6B |
23000 |
820-780 |
9 |
85 |
|
|
6.0A |
20000 |
820-810 |
7.5 |
84 |
5.6C |
26000 |
830-790 |
11 |
85 |
|
|
4.5S |
8000 |
700-670 |
2.2 |
70 |
6.3A1 |
31000 |
820-770 |
13 |
86 |
|
|
4.5M |
11000 |
730-690 |
3 |
72 |
6.3A2 |
34000 |
1050-900 |
15 |
88 |
|






