产品概述:
自动耦合装置简称自耦。自动耦合装置是一种潜水排污泵出法兰与出水管路系统自动对接的自动耦合装置,由潜水电泵出水法兰、附加耦合法兰和出水管座进口法兰组成。自动耦合装置,一般用于排污泵,因为排污泵安装在液面以下,水质比较差,人无法直接进到集水坑下面进行维修,为了解决维修问题而做的水泵接口快装系统叫自动耦合系统。
自动耦合系统本身分为4部分,一部分和水泵相接叫滑板,一部分安装在积水坑内叫底座,一部分安装在集水坑口上端固定座,一部分是滑轨引导水泵安装到位和提升到坑外方便维修,整个一套系统就是自动耦合系统。
带自动耦合装置的水泵多用于潜水泵、潜水污泥泵。自耦装置基本配置为底座、支架、支撑块(柱)、型面垫圈,可选配导杆、螺栓等。

产品优点:
将出水管固定在污水池的底部,在池顶安装配套的支撑件,用双内导轨使泵的出口与出水管自动对正。独特设计的出口连接确保了在泵和底座之间的连接处绝无泄漏。此安装方式可避免检修时工作人员进入污水池,既保护了环境,又降低了维修成本与工人强度。当水泵发生故障时不需要拆解管道,通过拉链就可以将水泵顺着滑道从水下提出来,便于方便检修。当检修结束后,在沿着滑道放到水下,水泵入位后,水泵出口会在自藕器的作用下良好对接。
性能特点:
1、结构紧凑、占地面积小。排污泵由于潜入液下工作,因此可直接安装于污水池内,无需建造专门的泵房用来安装泵及机,可以节省大量的土地及基建费用。
2、安装维修方便。小型的排污泵可以自由安装,大型的排污泵一般都配有自动藕合装置可以进行自动安装,安装及维修相当方便。
3、连续运转时间长。排污泵由于泵和电机同轴,轴短,转动部件重量轻,因此轴承上承受的载荷(径向)相对较小,寿命比一般泵要长得多。
4、不存在汽蚀破坏及灌引水等问题。特别是后一点给操作人员带来了很大的方便。
5、筑物内使用的排水泵有潜水排污泵、液下排水泵、立式污水泵和卧式污水泵等。由于建筑物内一般场地较小,排水量不大,排水泵可优先采用潜水排污泵和液下排水泵,其中液下排污泵一般在重要场所使用;立式污水泵和卧式污水泵要求设置隔震基础、自灌式吸水、并占用一定的场地,故在建筑中较少使用。排水泵的流量应按生活排水设计秒流量选定:
6、当有排水量调节时,可按生活排水最大小时流量选定。消防电梯集水池内排水泵流量不小于10L/s。 排水泵的扬程按提升高度、管道损失计算确定后,再附加一定的自由水头。自由水头宜采用0.02~0.03MPa。排水泵吸水管和出水管流速不应小于 0.7m/s,并不宜大于2.0m/s。 公共建筑内应以每个生活排水集水池为单元设置一台备用泵,平时宜交互运行。地下室、设备机房、车库冲洗地面的排水,如有两台及两台以上排水泵时可不设备用 泵。
7、当集水池无法设事故排水管时,水泵应有不间断的动力供应;
8、当能关闭排水进水管时,可不设不间断动力供应,但应设置报警装置。
9、当提升带有较大杂质的污、废水时,不同集水池内的潜水排污泵出水管不应合并排出。
10、当提升一般废水时,可按实际情况考虑不同集水池的潜水排污泵出水管合并排出。两台或两台以上的水泵共用一条出水管时,应在每台水泵出水管上装设阀门和止回阀。单台水泵排水有可能产生倒灌时,应设止回阀。不允许压力排水关与建筑内重力排水管合并排出。
11、当潜水排污泵提升含有大块杂物时,潜水排污泵宜带有粉碎装置;当提升含较多纤维物污水时,宜采用大通道潜水排污泵。
12、当电机功率大于等于7.5kW或出水口管径大于等于DN100时,可采用水泵固定自耦装置;
13、当潜水排污电泵电机功率小于7.5kW或出水口管径小于DN100时,可设软管移动式安装。污水集水池采用潜水排污泵排水时,应设水泵固定自耦装置,方便水泵检修。排水泵应能自动启停和现场手动启停。多台水泵可并联交替运行,也可分段投入运行。
应用实例:
一、潜水泵自动耦合装置轴面图

二、自动耦合装置系统图

三、安装说明
本说明适用于潜水泵湿式安装方式,(以下零件序号请参照“自动耦合装置轴面图”)
A、安装过程的前处理。注:DN200~DN500需A过程。DN50~DN150无需过程。
1、底座(11)地脚螺栓孔的位置。
根据设计施工图,在污水池浇注混凝土前,将底座(11)安装的地脚螺栓孔留好。其预留孔的中心与安装系统的Z轴线的位置符合底座固定螺栓分布图(见表1),预留孔的大小为100*100的方孔。
2、进一步核准Z轴线与出墙管中心,与地脚螺栓预留孔的中心线以及池口支撑块的中心线应在同一轴面内,而尺寸应符合安装系统图的要求,方可进行浇注。
B、安装过程
1、确定支承块(2)的位置
在排水管道一侧的池口壁上划一竖线记号,使竖线在排水管中心的平面内,该竖线作为支承块(2)安装对称基准线。
2、安装支承块(2)
使支承块(2)的中心线与池口安装基准线重合,按支承块(2)的槽距在池壁中心钻两孔(参照胀锚螺栓大小),插入胀锚螺栓(1)把支承块(2)固定,但不要完全拧紧。
3 - a 安装底座(DN50~DN150)
3.1 - a 确定底座的正确位置,把底座放入池底,自支承块(2)上挂下一根铅垂线,使其与支承块(2)的中心线重合,根据铅垂线找正底座(11)的中心线,并注意使支承块(2)上的两圆锥体中心和底座(11)上的两圆锥体中心在同一铅重面上,划好底座(11)地脚螺孔的位置。
3.2 - a 打底座(11)地脚螺孔:移开底座(11),根据划好的孔位和胀锚螺钉(12)直接的大小钻孔,把孔中的灰屑彻底清除,放上底座(11),插入螺栓(12)并拧紧。
3 - b 安装底座(DN200~DN500)
3.1 - b 安装底座(11)的正确位置:把底座(11)放入池底。自支承块(2)上挂下一根铅垂线,使其与支承块(2)的中心线重合;根据铅垂线找正底座(11)的中心线,并注意使支承块(2)上的两圆锥中心和底座(11)上的两圆锥体中心在同一铅垂而上,调整好地脚螺栓在预留孔中的位置。
3.2 - b 浇注预留孔,用混凝土浇实预留孔,注意保证地脚螺栓在孔中的位置及螺栓露出地面的长度。在浇注完毕后再一次核准地脚螺栓的安装尺寸。
浇注后,保养期为15天(注意:高质量混凝土,足够的地脚基础厚度,是泵无震动工作的不可缺少的条件)。
4、安装导管
如果池深小于6米,则把两根导管(10)根据池深锯短装好在支承块(2)和底座(11)之间,两头分别套入支承块(2)和底座(11)的锥形中,并务必使导管垂直。
如果池深大于6米,则用联管器(5)将导管(10)与短导管(3)联接起来,并用内六角螺钉(4)紧固,然后再把导管装在支承块(2)放底座(11)之间,并务必使导管垂直。
5、固定支承块(2)底座(11)和导管(10)所组成的系统;
再次检查支承块(2)、导管(10)与底座(11)确使它们垂直,并使支承块(2)中心线与底座(11)中心线在同一平面内,最后紧固系统中所有螺钉,使整个系统在垂直与水平方向都无活动余地。
6、安装排水管路
根据安装图,用螺栓及密封垫圈等依次联接好排水管,可曲挠橡胶接头、弯管、出墙管、旋启式止回阀、楔式闸阀等,并用混凝土将出墙管与墙体填实。
7、装支架
将型面垫圈(6)嵌入支架(7)内,注意型面垫圈(6)安装的方向性,其橡胶法兰边一样厚的是与电泵法兰面接口的,而橡胶法兰有厚薄的一边与底座接口的;并要使最厚处在安装孔的最上端,用螺栓(9)、垫圈(8)将支架固定在泵出水口的法兰上,为保证其密封性,应将螺栓交替对角拧紧。

8、吊入水泵
将链条装在电泵的吊环孔内,将水泵吊起,使其沿导管滑至污水池内,最后卡在底座(11)两侧面的筋板上,这样由于泵本身的重量,可以使泵自动地获得正确的工作位置,保证泵出水口与底座的密封性能。
9、调整浮球开关位置
用户根据设计要求或自己的需要,调整浮球开关位置,以达到根据池内水位变化,控制电泵的启、停,最底水位应使液面淹没涡壳。
10、附建议
安装完毕后,可以浇灌混凝土斜坡底面,污池一周的斜坡的选择,应适合污池的尺寸,一般来说,水平与垂直尺寸定比为2:1

11、水泵的起吊
为了方便用户吊水泵之用,水泵设有一个专用的扣眼,提升电泵前,将扣眼挂在起重钩上,将尼龙绳和链条从圆孔中穿过,将绳头拉直,扣眼沿着尼龙绳和链节下滑,当放至合适的位置,将尼龙绳放松时,链条中的某一链节会与扣眼咬合锁紧,此时即可起吊提升水泵,利用扣眼同样可以安全,方便地将泵安放在予定位置。

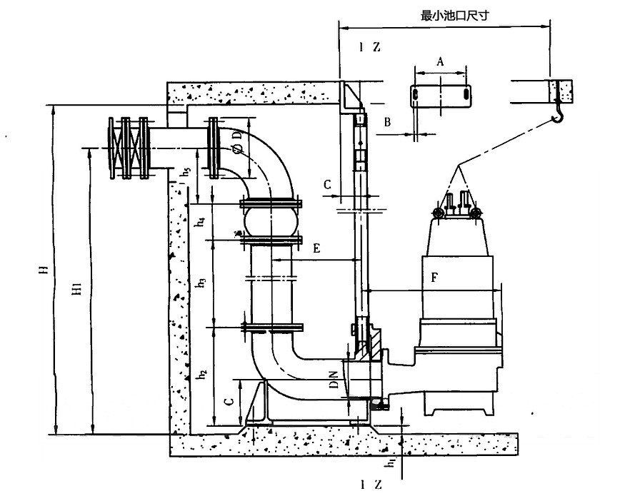
四、
自动耦合装置安装尺寸图

五、自动耦合装置尺寸及订货须知
1、池深
H > h1 + h2 + h3 + h4 + h5 + ΦD/2
2、排水管中心至池底的距离
H1 = h1 + h2 + h3 + h4 + h5
3、订货中除注明选择泵的型号外,须注明H及H1

六、底座安装螺栓分布图








